Casa BT

Casa BT

Treviso, Italy

Casa BT

Crediti

Cliente

Private

Collaboratori

Guido Viel
Giuliano Menegon
Alessandro Palamidese
Leonardo Mummolo

Autori

Francesco Tomasi

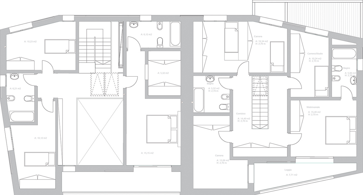
The building consists in a detached house located in the outskirts of Treviso, 30 km from the Venice lagoon. The usable floor area is 185 sqm per unit. Two parking covered places per unit were required by the administration althought it was clearly demonstrated that they weren’t necessary.

The primary goal was to build a low energy consumption house that could represent an iconic building for the small town thanks to the sustainable and design values.

Disegni tecnici:

Report esteso:

Construction detail

The building consists in a detached house located in the outskirts of Treviso, 30 km from the Venice lagoon. The usable floor area is 185 sqm per unit. Two parking covered places per unit were required by the administration althought it was clearly demonstrated that they weren’t necessary.

The primary goal was to build a low energy consumption house that could represent an iconic building for the small town thanks to the sustainable and design values.

Among the clients request’s, the need of flexible living space, the installation of home automation systems and the primary decision of using ecological construction materials were taken in acount.

The design is the result of a mix of compact volume and summer light shading needs. Both units are developed in two floors, with north european distribution scheme: living spaces located in the south- east and entrances, garages and bathrooms in the north side. Because of the climatic factors, north and south facades are extremly different, the north one with few and small apertures, and the south one with big windows. To prevent excessive summer light and heating this big apertures are sun shaded by the roof and first floor  overhang. The summer heat is mitigated thanks to an internal cross natural ventilation effect  helped by the trench humidity southeast bound, reducing this way the cooling energy consumption.

The home automation system integrates the fotovoltaic energy production ( 6 kW per unit ) with the heating, the appliances and the electric-car energetical needs and is programmed to activate several scenarios to reduce the consumption. During summer the opening/closing of the skylights is regulated to cool the house  according to the external and internal temperatures to low the use of mechanical cooling systems. This cross natural ventilation is generated in the big central void over the livingroom wich represents a sort of lung of the house.

The building was assembled entirely in X-lam panels in 10 days and the insulation is made of 16 cm thick  swiss woodfibre panels. This grants a 31 kW/sqm  consumption per year.

Cronologia:

2013

Design

2014

Construction

sheets: