Shades of Vilnius Old town
Crediti
Cliente
Committenza privata
Collaboratori
Autori
Ieva Prunskaitė
Rokas Puzinas
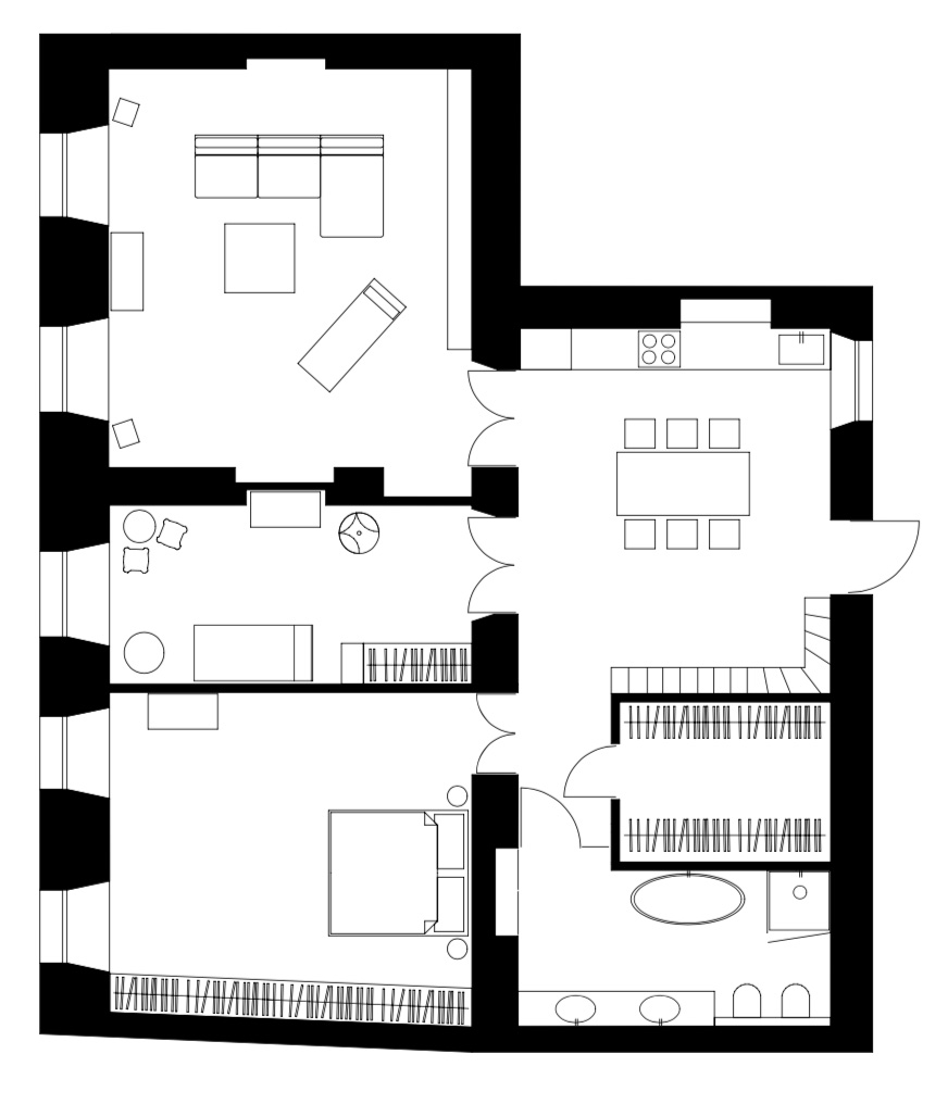
This is the interior of the apartment in the Old Town of Vilnius. The facades of the Old Town’s homes and the cozy walled inner courtyards, with their texture, colors, and aura, found resonance in these homes.
Disegni tecnici:
Report esteso:
Relazione estesa
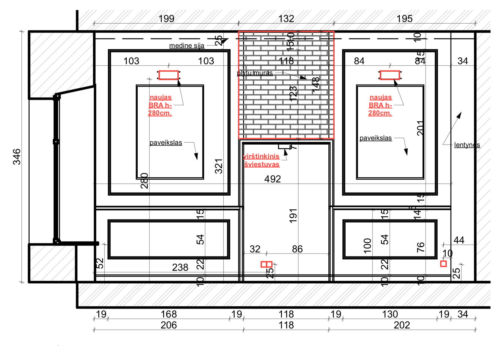
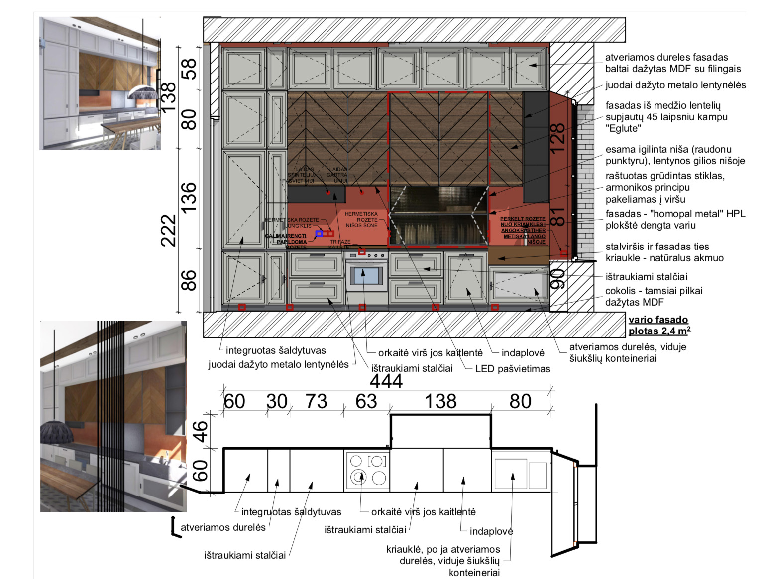
This is the interior of the apartment in the Old Town of Vilnius. The facades of the Old Town’s homes and the cozy walled inner courtyards, with their texture, colors, and aura, found resonance in these homes. Here you can find several hundred old bricks, and wooden balks revealing ancient structures of the building, and genuine old pine boards, which do not know how many bare feet have been walking, all of which has been preserved, restored and left to the next generations. Where color is desired, they are taken from the shadows of the facade of the house. The material is only natural, real and vibrant – helping to create a harmonious, rich, yet partly uncluttered interior, reflecting the most beautiful shades of the Old Town of Vilnius.
Cronologia:
2018