L’ala in rovina del museo statale di architettura di Schusev
Crediti
Cliente
The Schusev State Museum of Architecture
Collaboratori
Autori
Narine Tyutcheva
Despite the building’s rich history, the starting point of the project was the last and saddest stage of its fate: during the past few years, this dilapidated but quite viable building turned into a real ruin.
Disegni tecnici:
Report esteso:
Relazione estesa
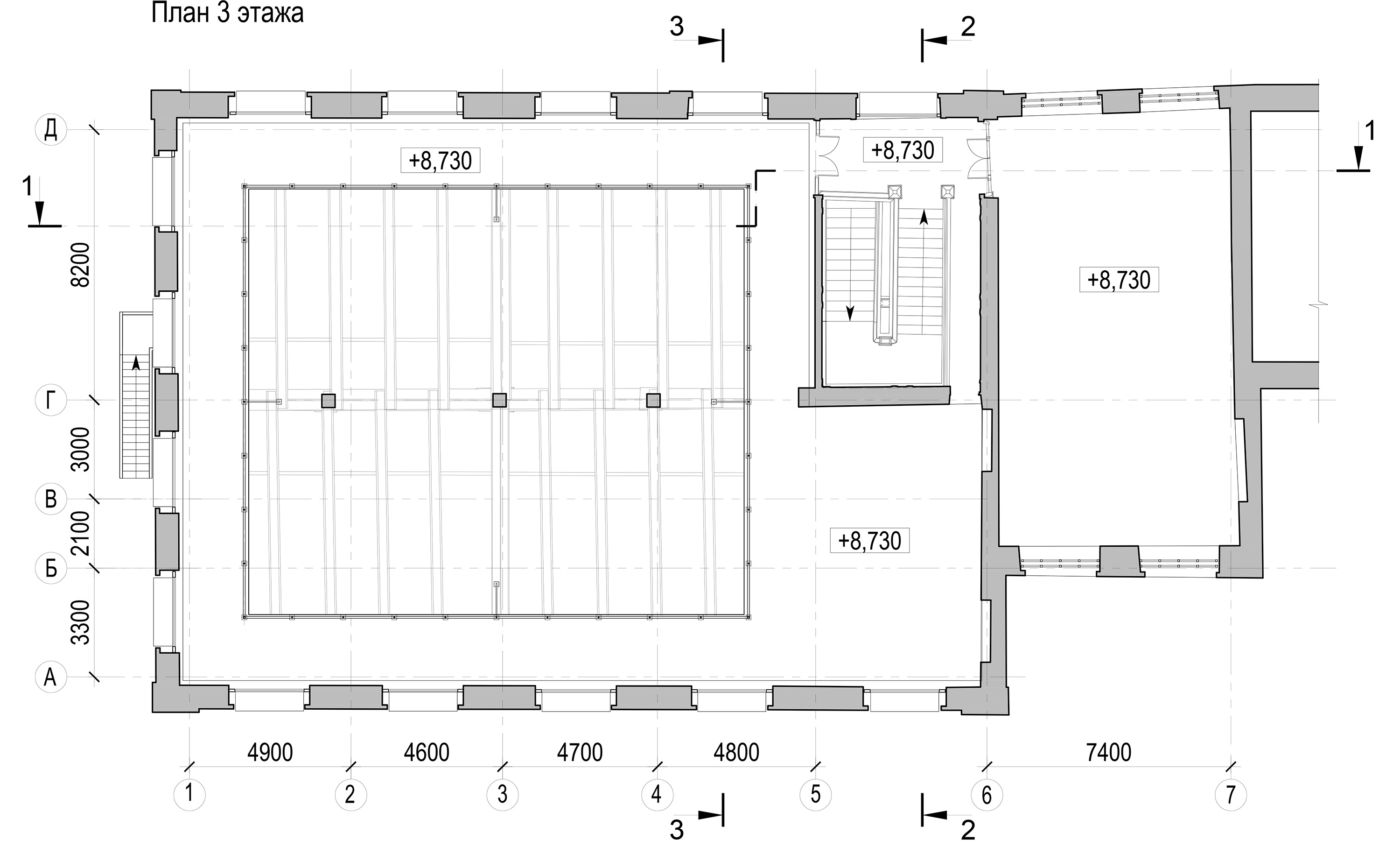
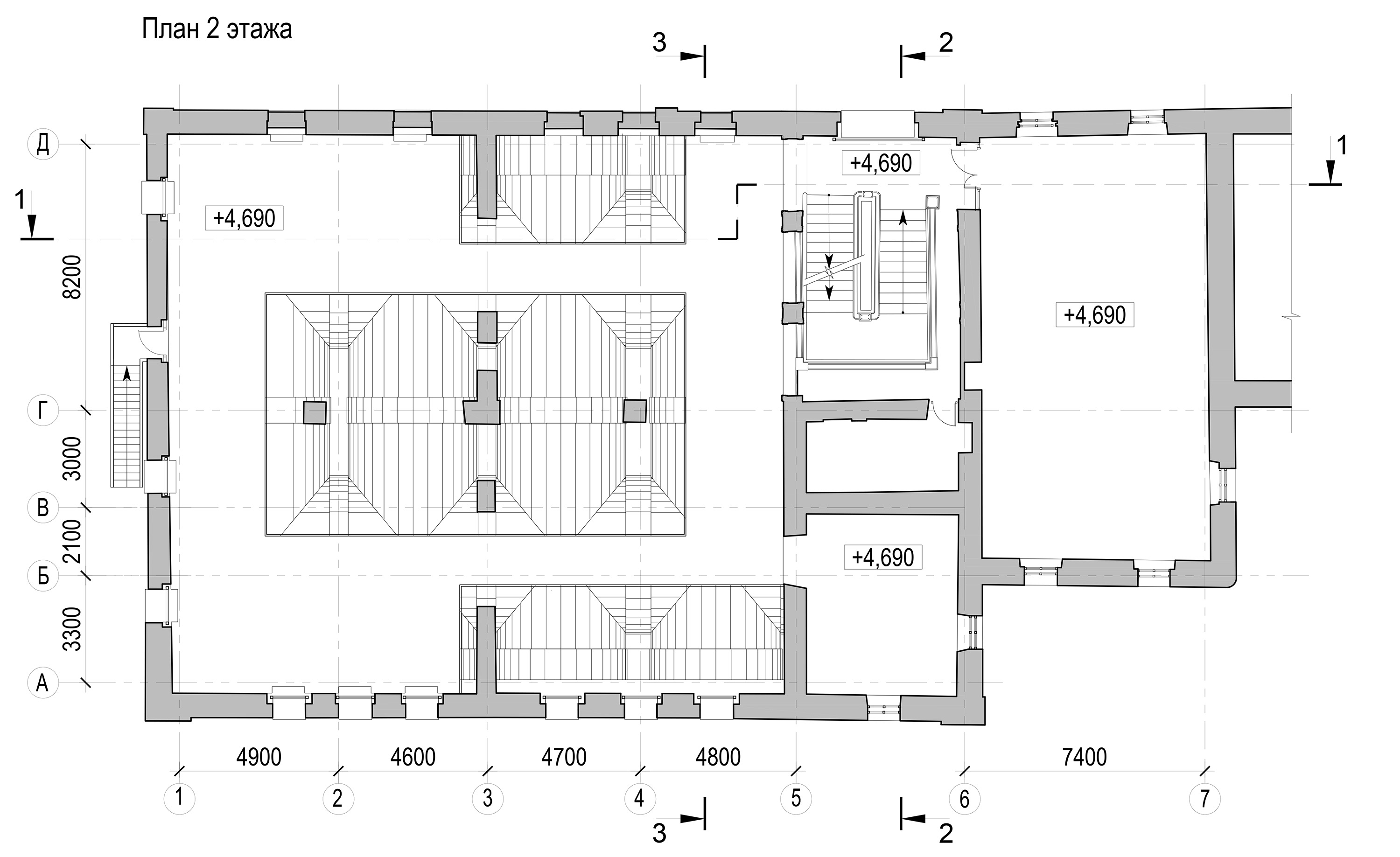
The Talyzins’ mansion wing tells its own story all by itself: by its peeling plaster facade bricks, one can read all time stages of its erection and following existence. In the 1990-s, a fire occurred, and it was then that the Ruin fell in its critical condition and acquired its current name. Repair and restoration project including emergency prevention measures is oriented towards transformation of a ruined wing in a multi-functional exhibition space, which is a museum exhibit on its own.
Rozhdestvenka Architectural Bureau wanted to make sure the authentic spirit is preserved. Only authentic materials, authentic elements of space and structure help us feel our place in time, and perceive ourselves as someone who belongs in the eternity and the Universe. It was this level of perception that Bureau saw as essential.
It was critical to focus on emotions and meaning, to create a space, and space is air, a kind of emptiness, limited and designed in a certain way and giving rise to certain emotions. Working with a space requires careful preservation and incredible attention to detail, which surely leaves infinite space for creativity.
The value Architectural Bureau wanted to show is above all the readability of the object in its historical evolution. It was important to fixate the aesthetic of the building as “ruins” to hold its social and public recognition and popularity, which it gained by being precisely “ruins.”
All new elements brought into the building (windows, toilets, etc.) are made in such a way that if the purpose of the building would change in the future, they could be replaced or removed without compromising the valuable historical basis.
Such a complex task required a lot of experience and professionalism. The walls were crumbling into dust, and at some point, it was hard to believe it is possible to restore the site. Eventually Bureau was able to complete the work, largely thanks to the skill of contractors working on this project. Highly sophisticated technology for fragmented removal, preservation and strengthening of the paint layers were used. It was incredible handmade work.
First of all, The Ruin is a wing of a mansion and is by definition part of the overall ensemble.
It has a “very Muscovite” personality. On the one hand, this is a single complex of buildings, while on the other hand, each building within has its own history, fate, shape, and architecture. That is why Rozhdestvenka Architectural Bureau decided to preserve the appearance of the lodge with fragments of plaster and paint on the facade, with imitations of empty windows made without the use of familiar woodwork, without the use of window panes. At first sight, such strong fixation of appearance suggests certain inconsistency of the restoration work, but if the facade of the wing would be completely renovated, it would look much more bold and inappropriate next to the main building of the mansion, the gardener’s house and the pharmacy. The Ruin Wing does not play the central role in the system of these buildings, in their hierarchy; moreover, it is located in the back of the yard, and its “disappearing materiality” may be entirely appropriate.
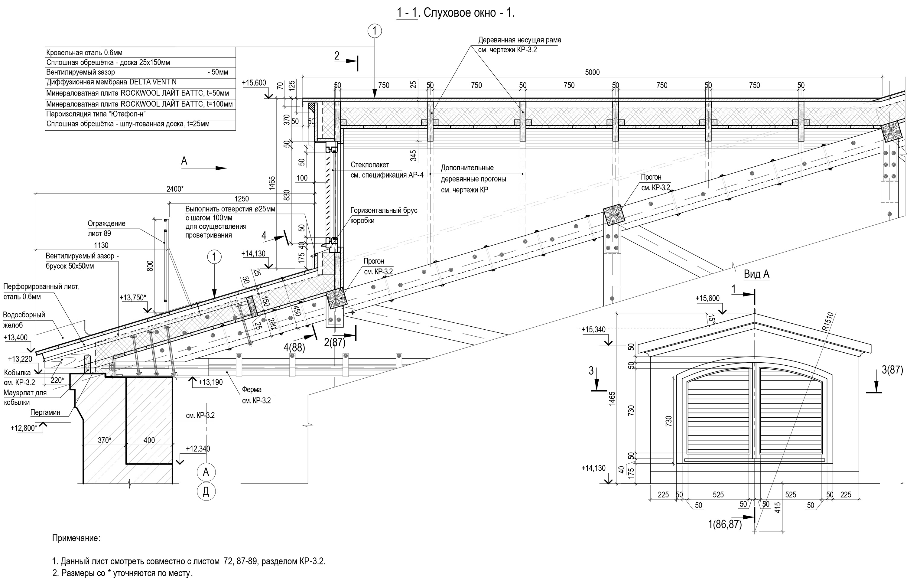
The project philosophy suggested by Rozhdestvenka Architectural Bureau provides for preservation and careful securing of all historical strata available at the moment of restoration. It is in fact a conservation carried out with the use of innovative construction materials and technologies. Serious research preceded the work, and as a result, a list of recommendations was made for each fragment of the building. For instance, a special approach was developed for brick laying. Its poor condition required partial re-laying and fractional repair work. As a result, “living walls” appeared as a document of time having their own artistic value. Rozhdestvenka managed to preserve wooden frame tainted remains of old horse stable gates, without changing them for new ones. Every finding — XIX century glass tile remains, old plaster with noble blotchiness, one hundred- year-old wooden balusters, lathwork —all was cleared, treated against fungi and insects and fixed in its natural state. The lost elements were not restored when there was no special need in them.
There were a lot of issues with the windows. The windows in this building are located on the inner edge of the outer walls. This automatically shifts the “dew point” inside the room. Such arrangement of window openings leaves only deep niches on the outside walls. Fortunately, Rozhdestvenka could find a solution to this difficult technical problem. Instead of a discussion of the period, for which the millwork had to be restored, the architects of Rozhdestvenka placed the stained-glass windows not on the outside, but on the inner part of the wall. Thus, a window gets enclosed in a special frame and the existing weatherings and lintels are articulated through it as exhibits: though partly ruined, they are rather live; besides, there is no need to repair them anymore. The windows turn into real display windows due to low window sills left outside for demonstration of the fragments of ruined monuments from the Museum’s lapidarium.
The facade with the remains of plaster and paint presented another challenge. After injecting, the walls were covered with micro pits. The restoration technologists who helped to get rid of them worked on the facade like true artists. The contractor used exactly the materials that were recommended. For example, imported ready-to-use mixtures were never used. The whitewash was prepared in the required proportions on the site.
The Museum of Architecture has always attracted enthusiasts of preserving “antique bits”. By virtue of their questing on construction sites in Moscow and Moscow area, a whole selection of carved white-stone pieces has been collected, which do not have any museum value according to experts but are definitely the documents of their time. The decision to use all these fragments both as exhibits and “construction material” has made it possible to obtain a space of new semantic and aesthetic quality. Inclusion of white-stone pieces in masonry voids thus becoming a “magazine carrying case” for rarities that do not belong to the assets of the Museum collection has proved a showy technique.
The Ruin Wing, returned to a new productive life by the project of Rozhdestvenka Architectural Bureau and with admirable quality implemented by company Integral, has become an example of adherence to provisions of the Venice Charter setting the guide lines at working with a monument, which is very important for the Museum of Architecture demonstrating on its own example the possibility of the architectural heritage correct adjustment to the contemporary needs. Herewith, the main value of the object is its being a carrier of historical truth in all complexity of its stratification. An object like that can be read as a book, which makes it a very valuable and unique exhibit setting a sense bearing code pattern to its own contents and neighborhood.
Cronologia:
2014-2017