La Confina

La Confina

Frascale di Fiorenzuola d'Arda, Italia

Crediti

Cliente

Cliente privato

Collaboratori

Matteo Costa
Alberto Catulli
Michela Bellezza
Giorgia Corvi
Alessia Damone

Autori

Filippo Sbarretti

Il complesso architettonico denominato “La Confina”, di proprietà della Famiglia Botti dal 1965, è sito nella località di Frascale di Fiorenzuola d’Arda. Le prime citazioni del podere “La Confina” risalgono ai secoli XII- XIV, quando venne edificato il primo nucleo della “casa-torre”, attorno al quale nei secoli successivi si svilupparono la villa padronale e i vari fabbricati agricoli. Il nuovo progetto di restauro prevede di restituire alla casa-torre della Confina la sua configurazione volumetrica d’insieme, adottando tecniche e materiali perfettamente distinguibili dal paramento murario della compagine conservata. Tutto il paramento murario oggetto di reintegro è stato realizzato utilizzando proporzioni e forme dell’impianto originario come desunto nei rilievi.

Disegni tecnici:

Report esteso:

Relazione estesa

Il complesso architettonico denominato “La Confina”, di proprietà della Famiglia Botti dal 1965, è sito nella località di Frascale di Fiorenzuola d’Arda. Le prime citazioni del podere “La Confina” risalgono ai secoli XII- XIV, quando venne edificato il primo nucleo della “casa-torre”, attorno al quale nei secoli successivi si svilupparono la villa padronale e i vari fabbricati agricoli.

L’antica conformazione architettonica della casa-torre della Confina è stata molto alterata negli anni Trenta con la demolizione della sua parte superiore, tanto da renderla quasi irriconoscibile rispetto ai più modesti volumi dei fabbricati che la fiancheggiano. Il dimezzamento della sua altezza ha cancellato uno dei punti di riferimento del paesaggio dell’intera zona: la torre della Confina si inseriva infatti in una rete di torrioni e strutture fortificate sopraelevate che nei secoli passati, oltre a costituire un efficiente sistema di controllo del territorio, costituivano i principali fattori identificativi del paesaggio e riflettevano il sistema delle relazioni politiche, economiche e sociali dell’epoca.

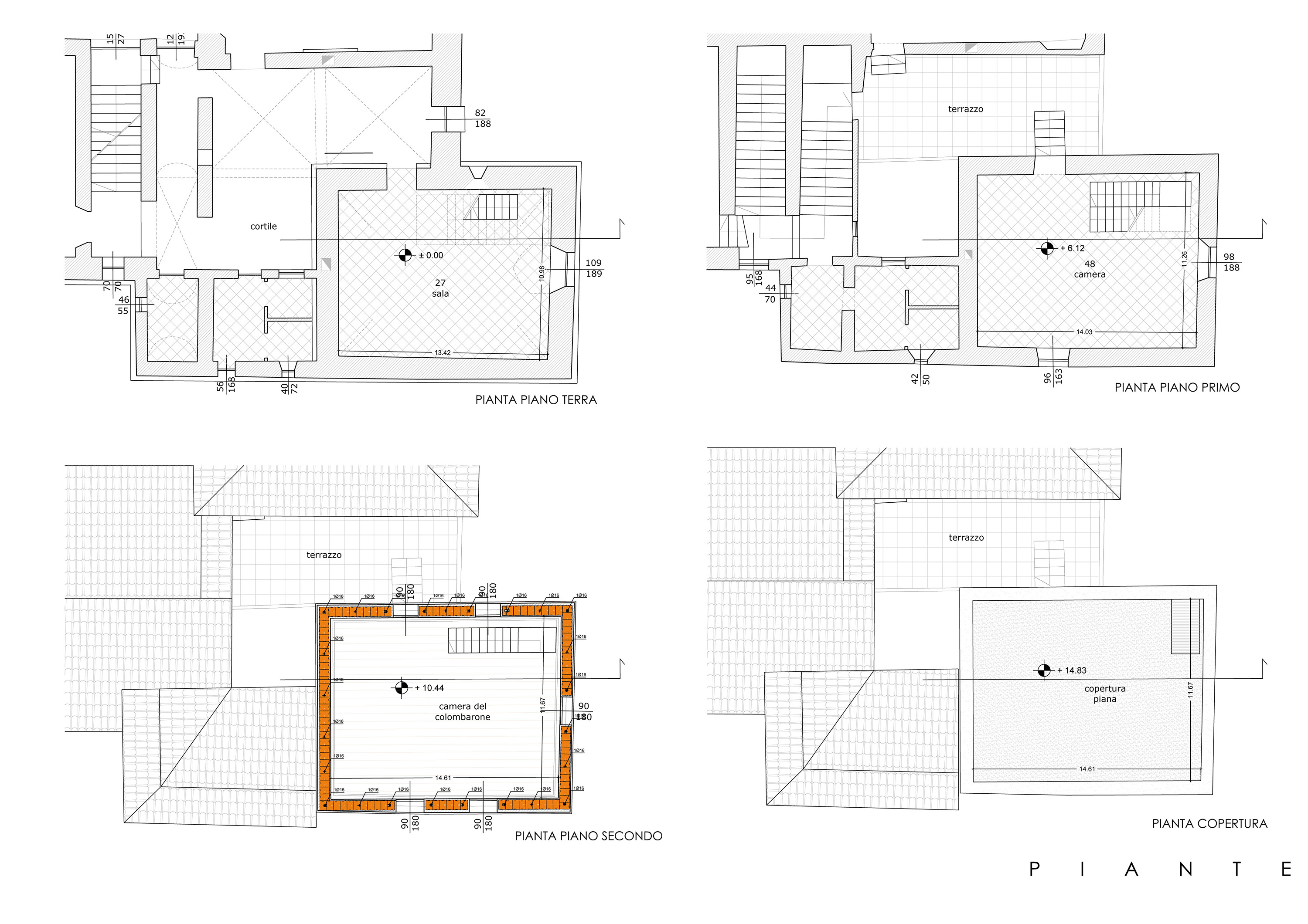
Il nuovo progetto di restauro prevede di restituire alla casa-torre della Confina la sua configurazione volumetrica d’insieme, adottando tecniche e materiali perfettamente distinguibili dal paramento murario della compagine conservata. Tutto il paramento murario oggetto di reintegro è stato realizzato utilizzando proporzioni e forme dell’impianto originario come desunto nei rilievi.

Il parziale ripristino volumetrico della torre, da non confondere con un ripristino sic et simpliciter, è più che auspicabile per due ordini di motivi. Il primo, per restituire al complesso lo storico rapporto tra le masse, che è sempre stato caratterizzato dalla svettante presenza della torre; e questo non solo per ricomporre l’unità d’insieme dell’immagine, ma anche per restituire all’artefatto un significato comprensibile a un vasto pubblico. Il secondo, per restituire alla corte agricola della Confina il ruolo di caposaldo percettibile che ha sempre svolto nell’ambito paesaggistico locale. Il progetto si propone perciò anche di riqualificare il paesaggio locale, recuperando uno dei fattori costitutivi e invarianti del suo ambito spaziale. Quindi, con la parziale ricostruzione volumetrica della parte superiore della torre si propone di annullare l’effetto di spaesamento creatosi con il suo netto abbassamento. In questo modo, la torre torna a essere considerata uno dei punti di orientamento della rete relazionale di vicinato, caratterizzato da torri e colombiere di pari importanza paesaggistica.

Il progetto di restauro è stato realizzato con le seguenti caratteristiche:

1. Riconoscibilità – al volume ricostruito è stata data una connotazione architettonica distinguibile rispetto alle strutture che si sono conservate. In particolare, la colorazione e la tessitura del rivestimento in pietra sbozzata presenta delle leggere differenze, senza però determinare evidenti contrasti materici e morfologici con il vecchio palinsesto. Inoltre, l’ingombro dei lati della parte di torre ricostruita è stato dimensionato con una piccola rientranza, visibile a occhio nudo, in modo da segnalare il nuovo inserto in sottosquadro rispetto al vecchio.

2. Compatibilità – il rivestimento è stato realizzato con ciottoli parzialmente sbozzati, analoghi a quelli della muratura esistente, e laterizi di recupero di dimensioni leggermente diverse ma di uguale colore.

3. Minimo intervento – La ricomposizione della torre si limita ai soli elementi strutturali, morfologici e volumetrici, deducibili dalle fonti storiche, fotografiche e archeologiche. L’intervento non ha riguardato in alcun modo il ripristino arbitrario di elementi architettonici e strutturali non documentati, come ad esempio profili modanati di cornici marcapiano e finestre dalla forma curvilinea. Gli ambienti della preesistente parte basamentale della torre sono stati recuperati rispettando le finiture preesistenti, seguendo in questo i criteri del restauro conservativo.

4. Interdisciplinarità – I presupposti metodologici del progetto in argomento si fondano sull’apporto di figure professionali aventi competenze rispettivamente storiche, architettoniche, ingegneristiche e di restauro; tutte figure che hanno seguito direttamente le fasi di rilievo e di analisi del manufatto.

Per l’edificazione del nuovo volume sono stati utilizzati blocchi di dimensioni 30 X 19 X 21 cm come muratura portante, mentre il rivestimento murario in pietra è stato realizzato con ciottoli sbozzati di dimensioni variabili da 5 a 30 cm, allettati con malta di calce aerea e rifiniti da una stilatura profonda; i cantonali con mattoni cotti di recupero, di dimensioni pari a 28 x 12 x 7 cm, allettati con malta di calce aerea.

Si è optato per l’utilizzo dei blocchi Poroton per varie motivazioni: dal punto di vista statico, i blocchi utilizzati sono caratterizzati da una particolare conformazione geometrica che consente di ottenere dei vani per l’inserimento delle barre di armatura verticali che sono stati poi saturati con malta fluida, mentre le armature orizzontali sono state disposte in corrispondenza del giunto orizzontale di malta. Inoltre si tratta di una muratura caratterizzata da una maggiore leggerezza rispetto ad una muratura piena o una in calcestruzzo armato anche se è stato aumentato il peso specifico della muratura armata, in ragione dei rivestimenti previsti per cui è stato inserito un cordolo sommitale sulle pareti in muratura armata che coronano l’ultimo livello.

Questo tipo di muratura si presenta strutturalmente più leggibile di quella a telaio tamponato, poiché è più facile prevederne il comportamento statico ed è, sotto questo profilo, più affidabile e più sicura. La presenza dell’armatura conferisce alla muratura una maggior resistenza a trazione e a taglio, permettendo così di sfruttarne a pieno le potenzialità aumentandone resistenza, duttilità e capacità di dissipare energia.

Un’altra caratteristica fondamentale che ha portato alla scelta del sistema di muratura adottato, è l’ottima resilienza e gli eccellenti livelli di sicurezza in zona sismica. Nei confronti di sismi di media intensità, la muratura armata evita quei danneggiamenti che, sebbene non distruttivi per la struttura, compromettono in alcuni casi l’agibilità della costruzione. Inoltre permette di realizzare edifici in zona sismica senza la necessità di dover aumentare gli spessori dei muri di piano in funzione dell’altezza del fabbricato.

Per quanto concerne le prestazioni termiche, la parete abbina ad una buona resistenza termica ottime doti di inerzia termica (smorzamento e sfasamento) e di salubrità ambientale, fattori ottenibili solo con pareti dotate di una massa adeguata.

La resistenza termica della parete, in condizioni di esercizio, corrisponde a quella di progetto e si mantiene costante nel tempo: un vantaggio ed una garanzia che influisce sui consumi energetici e migliora il benessere abitativo permettendo nello stesso tempo di ridurre i costi di costruzione. L’uso avveduto della massa termica ha un notevole effetto positivo sulle condizioni di benessere, sui consumi energetici anche invernali e sui carichi per il raffrescamento.

Cronologia:

2018 - 2019

sheets:

Site:

www.fsarchitettura.it