eARThouse

eARThouse

Abetenim, Ashanti region, Gana

eARThouse

Crediti

Cliente

Fondazione Nka

Collaboratori

Mantey Jectey-Nyarko (Ph.D), Artistic consultant, Department of Art, KNUST University, Kumasi

Autori

LOAD, LOcal Actions for Development

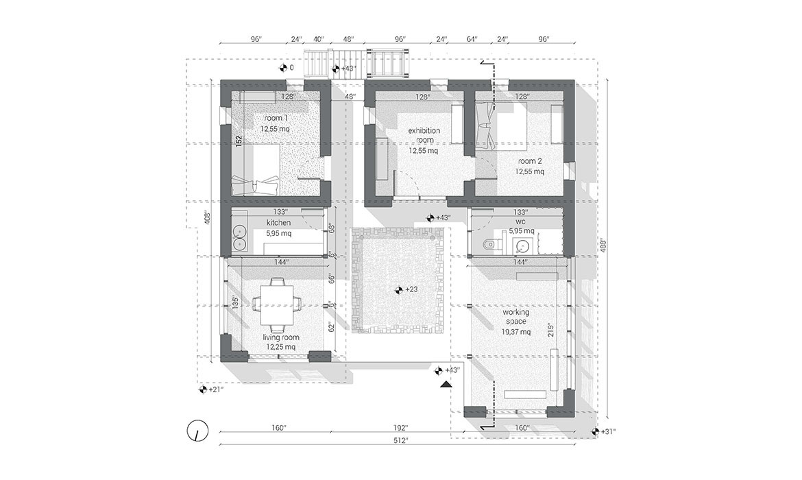
The project refers to the local patio house. The main function is about arts production, as a platform for cultural exchange. Responding to tropical climate conditions the building has a steep-pitched roof, with open gable and high peak to allow air circulation as well as wind-oriented pitches which channel cross breezes. 

Disegni tecnici:

Report esteso:

Relazione estesa

The project refers to the local patio house. The main function is about arts production, as a platform for cultural exchange. Responding to tropical climate conditions the building has a steep-pitched roof, with open gable and high peak to allow air circulation as well as wind-oriented pitches which channel cross breezes.

The project is also characterized by thick earthen walls, with high thermal mass and small openings on the south-side. The slight slope area offers natural rainwater drainage. Foundations are made by local granite stones and concrete mortar. A reinforced concrete ring beam was then poured to connect the foundations, to ensure even loads and to have a precise top section. The technique used for “eARThouse” provides rammed earth load-bearing walls. Stabilization is given by adding a small percentage of cement  (8%) to the dry mix of sand (10%) and soil (82%), reached through onsite samples. To achieve the widest spread of rammed earth, it must become able to compete with other cheap techniques such as cement blocks, mainly in term of costs, since the main aspects of structural strength and thermal comfort are qualities already recognized by the community. To reduce the construction cost the team designed metal formworks as a community tool, easily and quickly reusable by anyone several times, compared to the common wooden ones. Furthermore, the formworks were tested within a second project, which was totally funded by a local farmer with little money and time.Regarding the electric system, the switches and sockets are integrated inside the rammed walls, to address better quality of internal finishings and proving the equal potentials of this technique compared to others.The project provides a rainwater harvesting system in which the water is filtered and then stored within the water tank which can provide sanitary water to the kitchen and bathroom. Rubber stripes were fixed directly under the covering sheets, using half garden hose, to reduce rainwater noise. The aim was to find out cheap solutions to be reproduced by anyone from different social status, in order to improve living conditions through simple changes.To prevent from direct sunlight the main openings are covered with horizontal canes called Babadua, tied together to make a dense screen. Babadua is a traditional material, locally available and one of the most resistant type of wood against termites and weather, but fallen into disuse as a poor material nowadays. Constraints on resources in such contexts should bring to minimize the waste of material, in fact, rejected wooden boards were reused for frameworks and furniture.In this project sustainability means working with the lowest budget, in order to achieve a cost-effective building according to local dwellers affordability. Reducing the cost, while using natural materials combined with innovative solutions, anyone within the community will be able to enhance his dwelling condition, despite personal resources.

 

Cronologia:

Luglio 2016 Novembre 2016

Realizzazione

sheets:

Site:

https://load-project.com