Museo Arcivescovile e Cappella dei Vescovi – Restauro e musealizzazione di un edificio di epoca romana
Crediti
Cliente
“Archidiocesi di Ravenna e Cervia; Ministero per i Beni e le Attività Culturali, Direzione Regionale per i Beni Culturali e Paesaggistici dell’Emilia Romagna, Soprintendenza per i Beni Architettonici e Paesaggistici di Ravenna”
Collaboratori
Giovanni Righi, Clio Antonellini, Claudio Scanavini, Gualtiero Stabellini, Gian Carlo Grillini, Paola Novara
Autori
Diletta Evangelisti
Il progetto di restauro e del nuovo percorso museologico e didattico del Museo Arcivescovile di Ravenna, denominato Antiquarium, riguarda un edificio di 3 piani fuori terra ed uno interrato nella sua interezza , esso è l’antico Episcopio, situato a fianco della Cattedrale.
Disegni tecnici:
Report esteso:
Relazione estesa
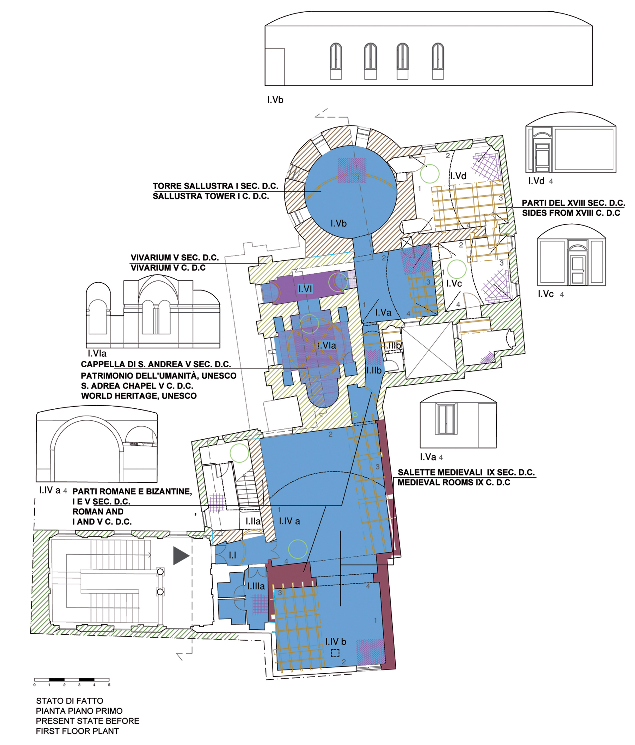
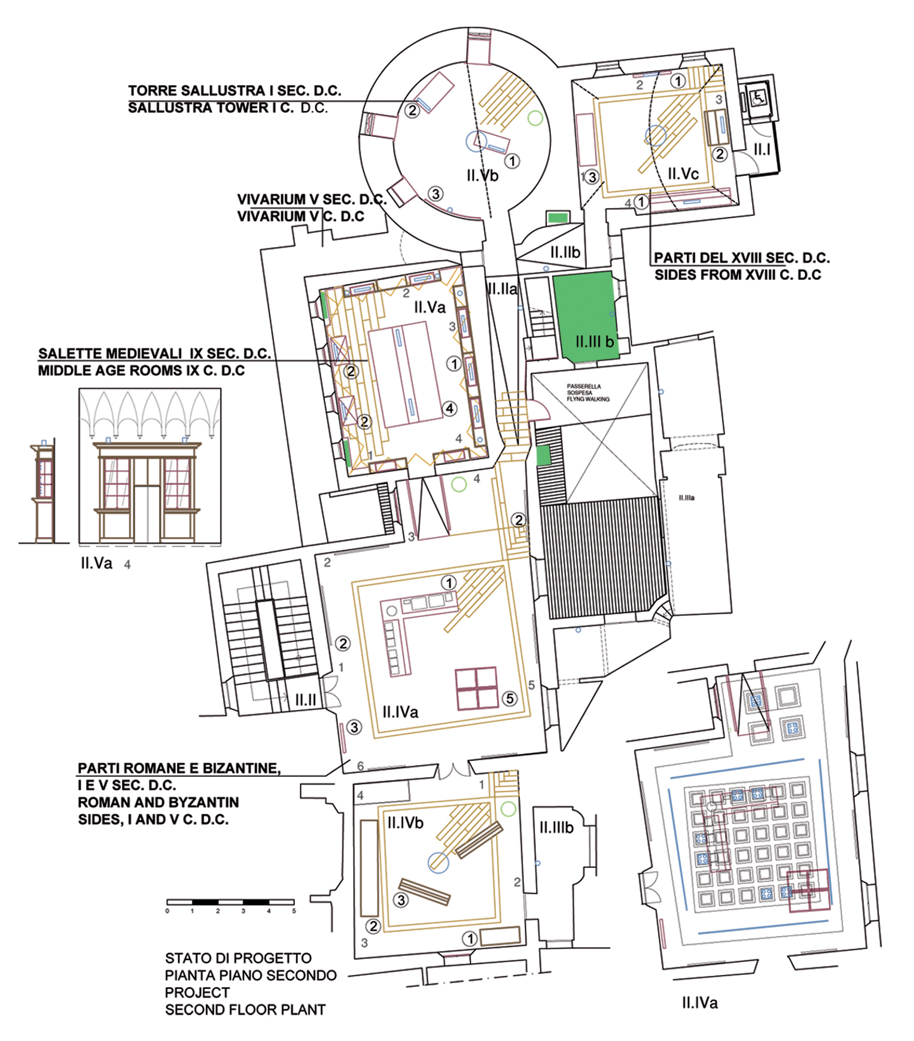
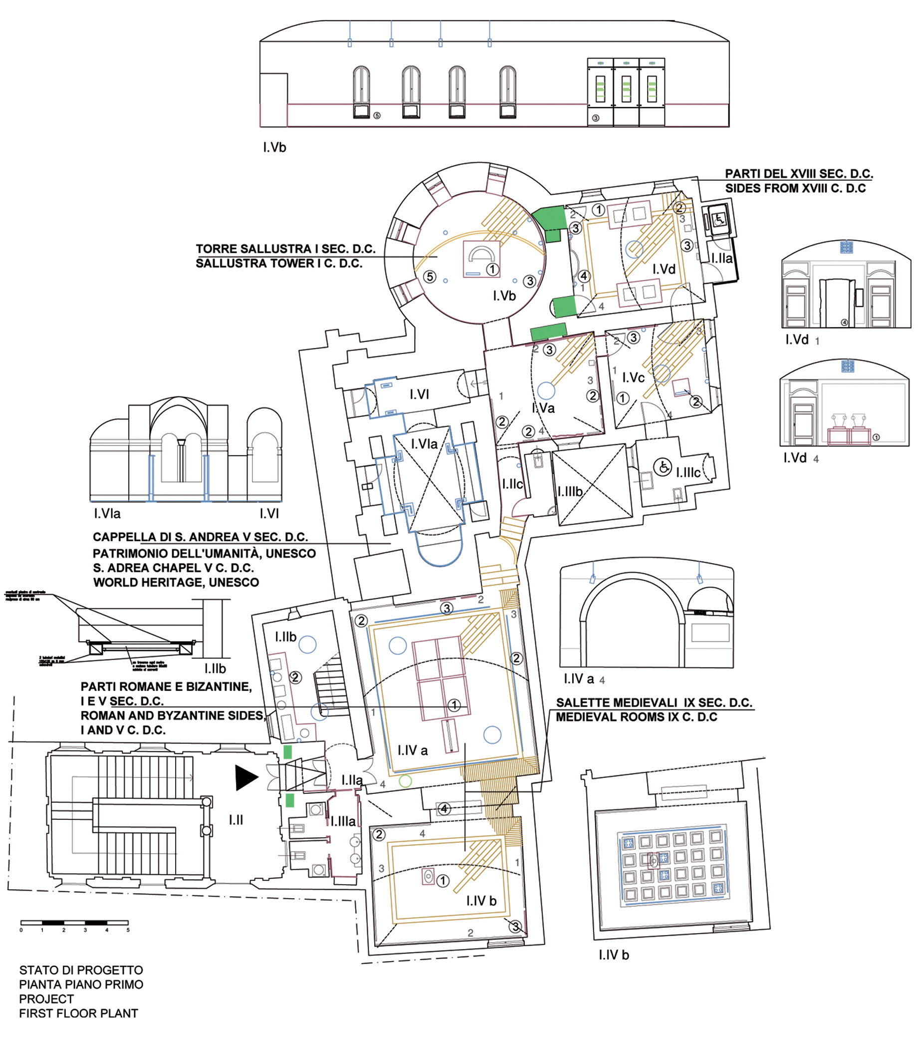
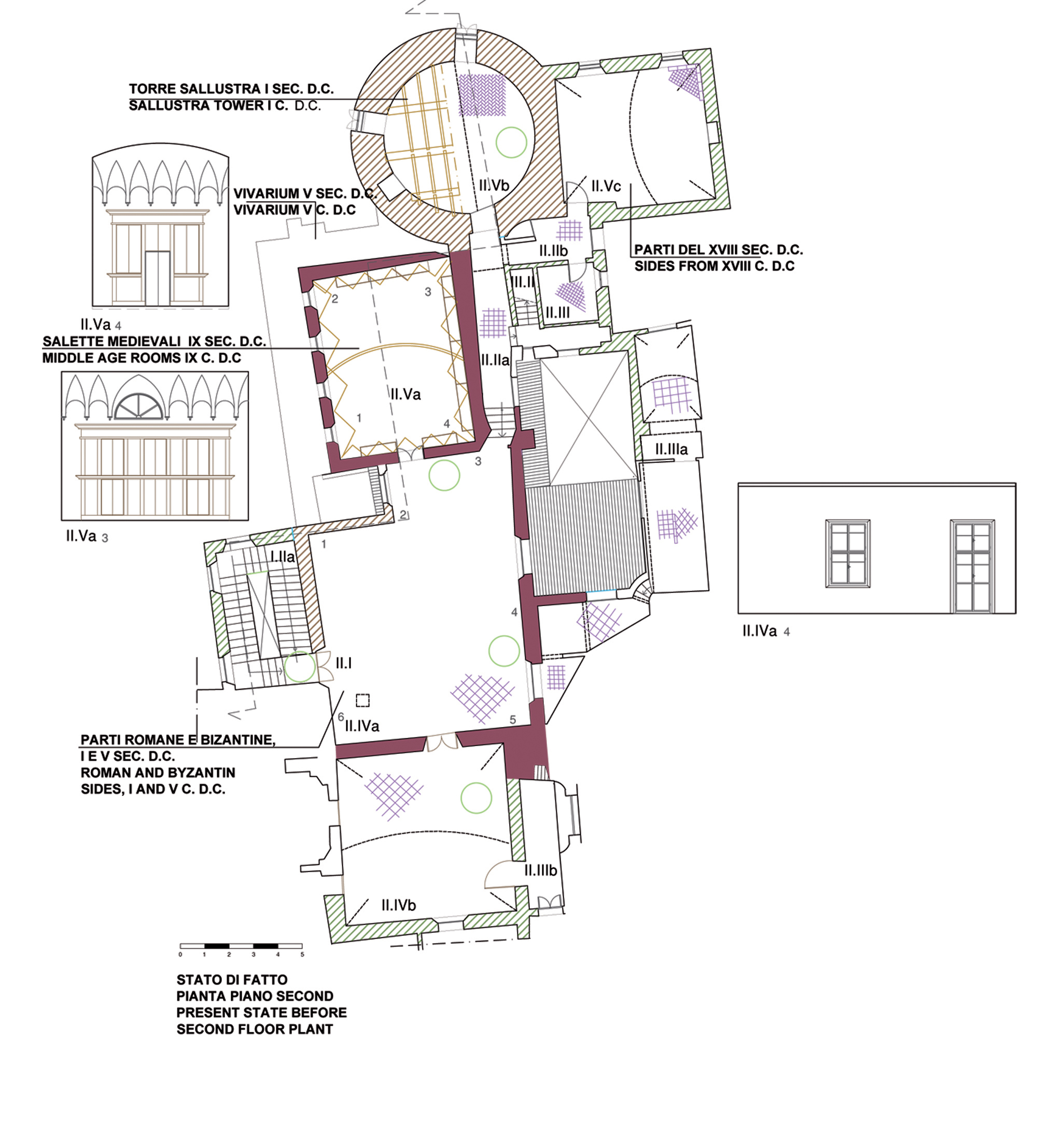
Il progetto di quella parte del palazzo vescovile, l’antico Episcopio, nel quale ha sede il Museo Arcivescovile, già dal XVIII secolo, ha come scopo il restauro scientifico dell’intero edificio interno ed esterno e di tutti i suoi ambienti. In particolare il recupero del secondo piano, costituito da diverse stanze mai aperte al pubblico, nella realizzazione di un nuovo percorso museale che interessa l’intera superficie dell’edificio in tutti i suoi piani e la dotazione di tutti gli impianti, tra cui l’illuminotecnico e di controllo del clima, di servizi igienici per personale e portatori di handicap, così come di un elevatore per questi ultimi, dei quali l’edificio è completamente sprovvisto, nuovo arredo espositivo specifico per gli elementi che contiene e supporto didattico specifico, recupero e restauro degli arredi antichi esistenti e della intera collezione lapidea di più di 200 pezzi. La particolarità dell’edificio, sede dei vescovi fin dalla sua nascita, nel IV secolo D.C. , e poi utilizzato come museo antiquarium , è proprio quella di essere costituito da volumi che chiamo scrigni, montati su tre livelli fuori terra ed uno interrato anche aggettanti tra di loro, costruiti uno di seguito all’altro a partire dal I sec.D.C. epoca romana, la Torre Sallustra, acquedotto traianeo, i corpi centrali della Cappella di S. Andrea, Patrimonio dell’Umanità-UNESCO e del Vivarium del V sec. D. C. di epoca bizantina , le salette medievali del IX sec. D. C, fino a concludersi con interventi del XVIII secolo attuati dal vescovo Farsetti che ha realizzato la collezione, sintetizzabili nei collegamenti orizzontali, verticali e nella realizzazione di un corpo nuovo perpendicolare al più antico.
L’eccezionalità dell’edificio è proprio quella di essere una testimonianza unica di edificio romano e paleocristiano che ha mantenuto intatta la sua destinazione ed utilizzo da quando è stato costruito. L’eccezionalità del contenuto è quello di essere contenitore, come la cappella di S. Andrea, creata a definire il culto cattolico culto del mondo cristiano, coperta di mosaici con raffigurazioni iconografiche, simboliche e della natura a rappresentare la bellezza e la perfezione come nella tradizione bizantina e di contenere inoltre in esso, oggetti appartenuti da sempre, come la cattedra eburnea del vescovo Massimiano, vi sec. D.C., magistralmente intarsiata dai maestri mediorientali e la croce in argento del vescovo agnello, vi secolo, ed opere raccolte dalle proprietà circostanti.
Il nuovo percorso museale destina nelle medesime sale di origine, al primo piano, dove si trova la Cappella di S. Andrea, la collezione lapidea con una nuova esposizione che segue l’ordine cronologico e la amplia nelle salette settecentesche e colloca la cattedra nella Torre Sallustra. Tale collezione è composta da lapidi con le iscrizioni dei primi vescovi e cristiani, dei cortigiani ed amministratori della corte imperiale, come già degli esarchi, supremi comandanti dell’esercito italico, stele, schienali di sedute vescovili provenienti da Costantinopoli, bassorilievi e statue in porfido raffiguranti imperatori, il calendario pasquale, unico reperto nel suo genere. Al secondo piano si trovano gli argenti, i mosaici e gli abiti di antichissima fattura.
STATO DI FATTO
L’edificio di per sé aveva subito un primo intervento di restauro i primi del XX secolo, nel quale erano state attuate delle aperture al piano primo che modificavano il percorso della collezione del vescovo Farsetti, sono stati realizzati gli interventi sui mosaici della Cappella di S. Andrea e scavi di approfondimento archeologico nel giardino, mai, non vi sono memorie scritte e non sono state trovate tracce durante i lavori, era stato realizzato un intervento come quello qui proposto. L’intero edificio era dotato di un impianto elettrico, di illuminazione e di allarme di base, molto ridotto, nessun altro impianto era presente. L’unica dotazione era quella di un servizio igienico al primo piano, mancavano completamente i servizi igienici per i portatori di handicap ed il personale e lo stesso elevatore per portatori di handicap.
STATO DI PROGETTO
PARAMENTI ESTERNI
Gli interventi sui paramenti e murature esterne e del P.T., sono basati su uno studio scientifico approfondito delle malte, delle stuccature, intonaci e dei laterizi, nel quale vengono evidenziate al microscopio le caratteristiche dei campioni presi, dopo di che sono state eseguite le opere di pulitura, consolidamento con iniezioni di calce, integrazione dei laterizi mancanti con originali e ricostruzione delle malte e delle stuccature dove ammallorate con materiali provenienti dalle stesse zone o cave, in particolare, per esempio, per le parti più antiche romane e bizantine gli studi evidenziano conglomerato di calce aerea con sabbie quaternarie, conchiglie e selci arrotondate a volte rosse, rosate, bianche e nere provenienti dal litorale di Cervia-Ravenna e dal litorale marchigiano, Fano, mischiate a coccio pesto.
STRUTTURE PORTANTI, E DI COLLEGAMENTO VERTICALI, SCALE , PARAMENTI MURARI INTERNI,INTONACI, STUCCHI ED AFFRESCHI
Gli intonaci esistenti sono stati mantenuti ed integrati dove mancanti con malte simili agli originali, inoltre sono state, a seguito di puntuali saggi, riportate alla luce strati sottostanti sui quali sono stati trovate superfici pittoriche con scritte, sinopie o decorazioni di vari colori, queste ampie campiture sono localizzate nella torre e nelle sale più grandi. Le testimonianze pittoriche sono state restaurate, pulite e riquadrate da ampi spazi dove sono stati demoliti gli intonaci più recenti in maniera da evidenziare la muratura antica sottostante nelle varie fasi costruttive, in questo modo anche all’interno si ha coscienza dell’epoca di appartenenza della sala. Gli affreschi figurativi esistenti, localizzati nelle sale maggiori e nella cappella, di epoca alto medievale e quattrocentesca hanno subito un restauro di consolidamento e pulitura.I saggi hanno evidenziato zone dove la muratura era particolarmente debole o non collegata, in tali zone è stato intrapreso una puntuale ricucitura con materiale di recupero in modo da avere un vero e proprio consolidamento dell’intero fronte, necessario essendo le sale costituite da volumi distaccati collegate tra loro da altri volumi. Così come sono state recuperate tutte le cornici e riquadrature in gesso e gli stucchi che decorano le salette settecentesche, P.1. Il sistema della scala del XVIII secolo, realizzata con voltini in muratura di spessore modesto, è stato rinforzato con telaio esterno in acciaio montato nella parte sottostante completamente verniciato. E’ stato collocato sul lato interno verso la cattedrale il volume di nuova esecuzione che contiene la piattaforma elevatrice ed i pianerottoli di sbarco in acciaio, realizzato in muratura intonacata.
STRUTTURE PORTANTI ORIZZONTALI, SOLAI,VOLTE
Sono state smontate e riutilizzate a seguito di pulitura le pavimentazioni in cotto del XVIII secolo che costituivano le pavimentazioni di alcune delle sale più piccole, mentre sono state demolite e sostituite le pavimentazioni recenti con tavole in rovere. In generale sono state recuperate e consolidate le travi in legno esistenti dei solai piani ed è stata aumentata la portata richiesta per gli ambienti pubblici, affiancando travi in acciaio e massetto armato ripartitore dei carichi soprastanti; sono state sostituite le travi più danneggiate con nuove, nei percorsi di collegamento e nelle parti dove la muratura mancava di un vero e proprio appoggio mantenendo così le murature esistenti; nella torre tra primo e secondo piano è stata scoperta una volta in laterizio dallo spessore ridotto ed è stata consolidata con rete , iniettori in acciaio e cappa in cemento ed è stato costruito un nuovo solaio calpestabile in acciaio alla quota superiore; la zona sulla quale appoggia la sala delle lapidi al primo piano è costituita da volte di epoca bizantina, parte del Vivarium e murature romane su di esse è stato realizzato un intervento di consolidamento delle volte dall’alto con iniettori in acciaio, cappa con rete e dal basso di iniezioni tra mattone e mattone di apposite malte, pulitura degli stessi, stuccatura delle fughe e collegamento con le strutture verticali, per le murature miglioramento nel loro legame tra mattone e mattone.
IMPIANTI
La dotazione degli impianti di riscaldamento a pavimento ed elettrico è stata realizzata nello spessore dei solai, le quote di piano sono rimaste le stesse, mentre le parti in risalita sono collocate in passaggi esistenti o vecchie canne fumarie. E’ importante sapere che le murature verticali sono state preservate praticamente nella loro interezza, sono stati scelti per la collocazione di termostati ed altro incassati nella muratura pochissimi punti, una quantità minore del numero di stanze presenti nel museo, si è preferito distribuire l’impiantistica per il controllo dell’umidità per l’estate o di umidificazione per l’inverno attraverso appositi battiscopa su disegno e collocare le stesse macchine in mobili disegnati su misura, come nella stanza degli argenti o in nicchie come nella sala della cattedra. L’impianto di illuminazione e di emergenza è interamente agganciato ai solai, o dentro a mobili esistenti ed incorporato nelle teche realizzate ex novo, l’involucro dell’edificio è stato preservato quasi interamente. Nella stessa maniera sono stati trovati punti di risalita esistenti per collocare l’impianto idrico antincendio. Il locale caldaia è stato collocato al secondo piano, in un locale sull’interno, lato cattedrale raggiungibile attraverso un nuovo percorso aereo, una passerella in acciaio completamente invisibile dall’esterno.
STRUTTURE NON PORTANTI ORIZZONTALI ESISTENTI E NUOVE COME ARELLATI , CONTROSOFFITTATURE E TINTEGGIATURE
Quasi tutte le stanze ai 2 piani presentano a soffitto volte ribassate in strutture in legno con rivestimento in arellato , canne e gesso, con e senza decorazione pittorica, tali elementi sono realizzati nel XVIII secolo, nell’intervento vengono mantenuti e completamente recuperati e riconsolidati, così come le decorazioni. Vengono realizzati nelle sale più grandi sprovviste delle nuove strutture soffittature con disegno a lacunare che ospitano l’impianto illuminotecnico e di segnalazione delle emergenze come in quelle vecchie. Le tinte delle pareti interne ed esterne sono tutte a calce.
ILLUMINOTECNICA-LIGHTNING
L’impianto illuminotecnico delle sale è stato realizzato completamente a soffitto, appeso alle strutture nuove e vecchie in gesso, mentre l’impianto delle teche e degli elementi a parete è a pavimento od in esterno, in questo modo sono state rispettate le strutture antiche. Sono stati utilizzati sistemi a binario per le stanze di dimensioni più grandi come la sala delle lapidi e la pinacoteca, che portano fari con diverse ottiche, corpi centrali multi lampada per le altre . Per la Cappella di S. Andrea, IV sec. D. C., è stato realizzato un particolare impianto tutto in esterno in appoggio e completamente su disegno, i corpi lampada sono piantane realizzate con tubolari in acciaio verniciato che portano fari led a diverse gradazione di luce, così come l’impianto è localizzato negli stessi tubolari appoggiati al pavimento a seguire la pianta a croce greca, la posizione delle piantane, che ripete quella delle torce dell’antichità, è quella dei 4 punti dove vi sono gli incroci, la qualità della luce cercata ed ottenuta, tutta puntata sugli splendidi mosaici che decorano le volte a croce e a botte, è quella che fa riflettere in tutto l’arco del giorno una luce meravigliosa per la quale sono stati creati, nel rispetto della cultura bizantina e dello stesso vescovo Pietro, ideatore della cappella, che sulle pareti scrive: la luce è nata qui,o qui, catturata, libera regna. Sistemi a led ed a fibra ottica sono stati montati nelle teche e nei mobili esistenti.
Cronologia:
2003
Progetto
2004
Lavori
2013
Fine lavori