Recupero rustico in Appennino

Recupero rustico in Appennino

Tufi d'Agna di Corniglio, Parma

Recupero rustico in Appennino

Crediti

Cliente

Privato

Collaboratori

Simone Leoni
Barbieri Danilo

Autori

Marco Contini

Questa realizzazione è situata a Tufi d’Agna, un piccolo nucleo abitato nel comune montano di Corniglio, all’interno dell’appenino Tosco-Emiliano riconosciuto recentemente come riserva MaB Unesco (Man and the Biosphere Programme).

Disegni tecnici:

Report esteso:

Relazione estesa

Questa realizzazione è situata a Tufi d’Agna, un piccolo nucleo abitato nel comune montano di Corniglio, all’interno dell’appenino Tosco-Emiliano riconosciuto recentemente come riserva MaB Unesco (Man and the Biosphere Programme).
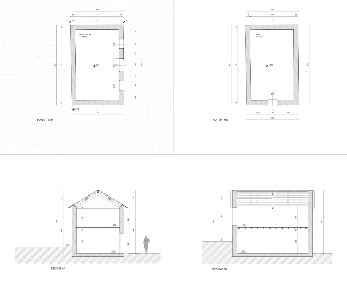
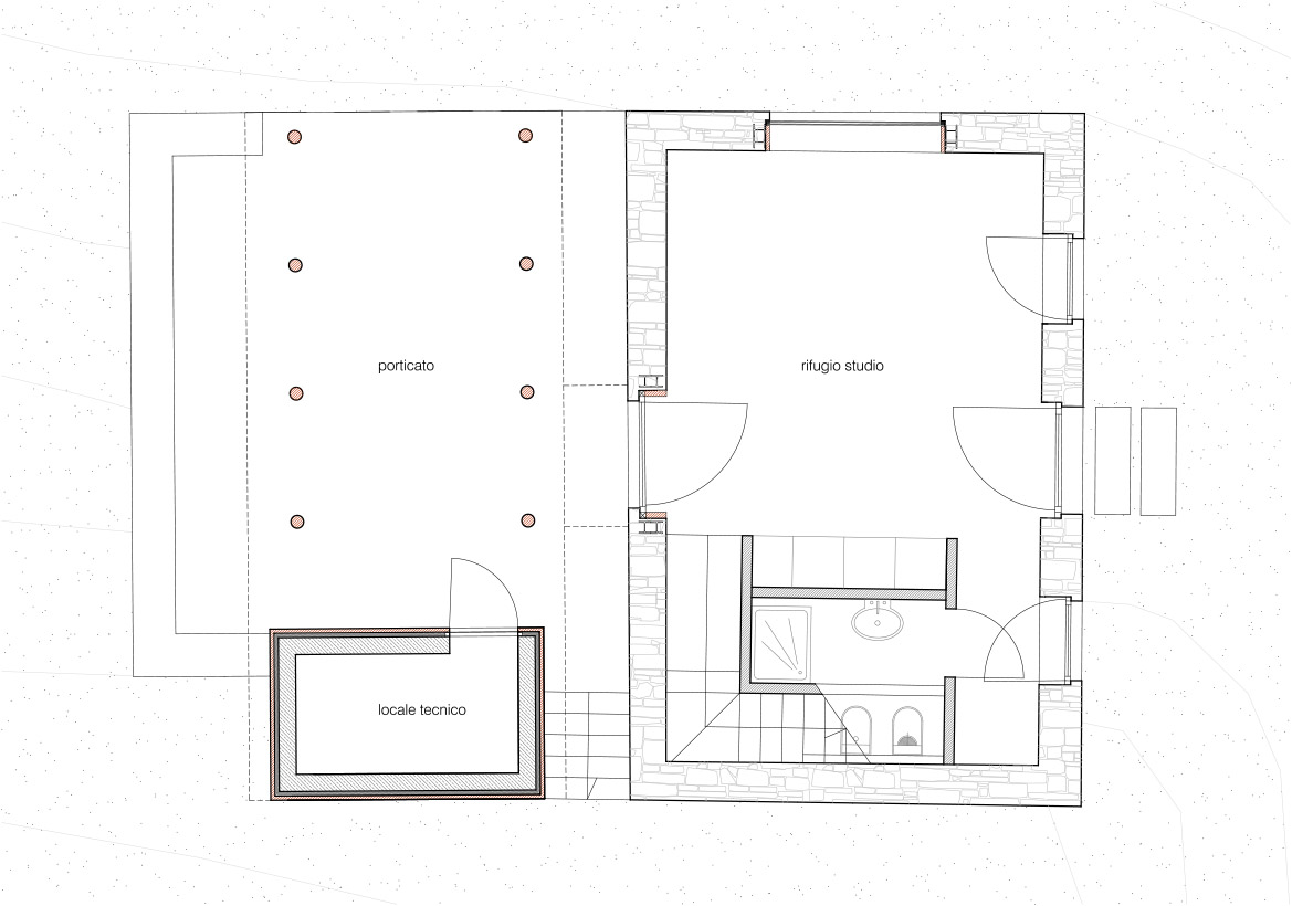
Il piccolo edificio, un fabbricato rurale un tempo destinato al ricovero dei pastori e degli animali, è stato recuperato come rifugio in cui l’uso abitativo, considerato la posizione isolata e le difficoltà per il suo raggiungimento, è saltuario e legato al periodo estivo.

Questa condizione, insieme alla disponibilità di acqua sorgiva e di legname del sottobosco, ha portato a scelte in cui gli obiettivi di sostenibilità sono raggiunti mantenendo e recuperando i caratteri originari dell’edificio che prima dei lavori versava in uno stato di forte degrado in special modo per la parti lignee della copertura soggette a dilavamento per le condizioni precarie del manto, e utilizzando tecniche di recupero tradizionali integrate con le sole e necessarie componenti tecnologiche, al fine di conservarne l’aspetto di semplice costruzione rurale collocata sul prato. In questa ottica del mantenimento storico testimoniale, le pareti perimetrali in sasso sono state recuperate e consolidate senza utilizzare isolamenti.

L’edificio è reso totalmente autonomo dal punto di vista energetico tramite la collocazione di un impianto fotovoltaico composto da 12 pannelli da 290w collocati sulla copertura del portico ligneo e collegati a 8 batterie di accumulo al gel da 3Kw ciascuna.
L’energia elettrica prodotta è utilizzata per l’illuminazione, le piastre a induzione, il riscaldamento dell’acqua sanitaria e il funzionamento dei radiatori elettrici per il riscaldamento, integrato da una stufa a legna con potenza di 6,5 Kw.

L’approvvigionamento idrico per le esigenze sanitarie è garantito da una vasca d’accumulo alimentata da una sorgente situata in prossimità dell’edificio.

Per il sistema di smaltimento e di trattamento delle acque reflue domestiche si è realizzato un impianto di fitodepurazione a flusso sub-superficiale orizzontale con recapito al suolo.
Per il controllo dell’inquinamento luminoso non sono stati collocati apparecchi di illuminazione nelle aree aperte.

Nei pressi dell’edificio è stata collocata anche una piccola centralina metereologica sempre alimentata a cellule fotovoltaiche che permette a chiunque di conoscere le condizioni del sito attraverso una semplice connessione internet. 

Gli interventi principali sono stati:
consolidamento del sistema fondale delle murature attraverso soletta in c.a; consolidamento delle murature con tecnica cuci e scuci e iniezioni di malta; ripulitura delle murature e ripristino delle stuccature;
demolizione e rifacimento del soppalco ligneo;
sostituzione della copertura lignea e manto di copertura in lastre di pietra; costruzione di cordolatura perimetrale superiore;
pavimentazioni in pietra;
costruzione ex novo di porticato ligneo in legno grezzo;
costruzione di locale tecnico in c.a. rivestito in tavole di castagno;
messa a dimora di vasca di accumulo acqua con collegamento all’edificio; messa a dimora di vasche per fitodepurazione con collegamenti all’edificio; 

Cronologia:

2014

Progetto

2015

Realizzazione

sheets: