Ristrutturazione della casa del Capitano

Ristrutturazione della casa del Capitano

Villaggio di Beijiao, (Fujian), Cina

Ristrutturazione della casa del Capitano

Crediti

Cliente

Shanghai Dragon Television

Collaboratori

Dongping Sun
Dan Zhao
Cunyu Jiang
Zhao Zhang
Zhenqiang Chen
Liangliang Zhao

Autori

Gong Dong

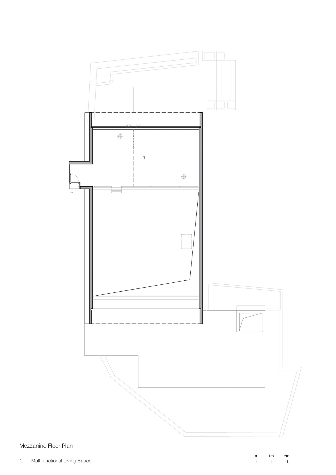
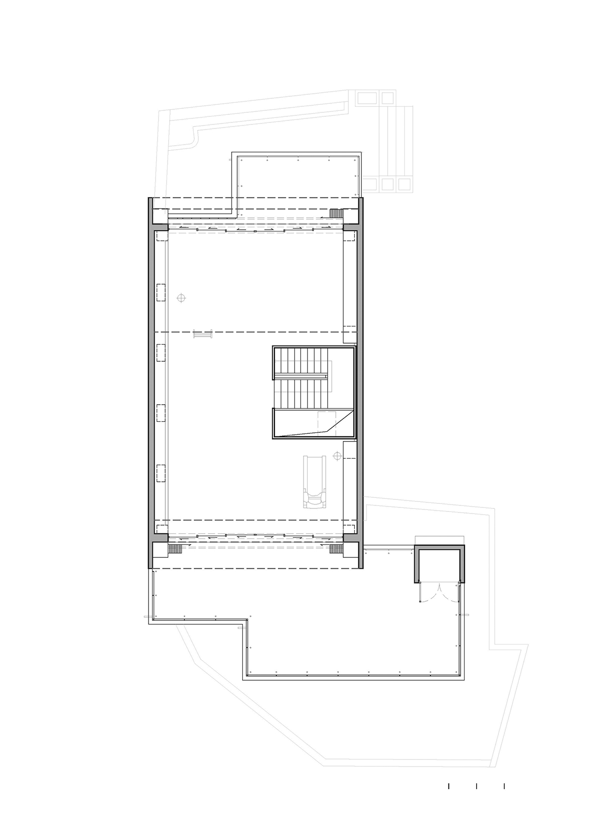
The Captain’s House was located on a cliff. Before the restoration work, it was a two-story house with a brick-masonry structure. Besides improving the interior living condition of the house, the client also would like to add a third level, as a multi-functional space.

Disegni tecnici:

Report esteso:

Relazione estesa

The Captain’s House was located on a cliff. Before the restoration work, it was a two-story house with a brick-masonry structure. Besides improving the interior living condition of the house, the client also would like to add a third level, as a multi-functional space. However, the old house was under the risk of structural failure. Therefore, the overall structural reinforcement thus became the proposal to set forth the design.

 

After having the studies in structural reinforcement, as well as a series of careful comparisons, we decide to add a layer of concrete to the existing brick wall as reinforcement. This strategy helps solve multiple problems, including adjustments in the floor plan, water leakage in the windows and walls. Due to the site limitations, the wall reinforcement to the main structure was done in the interior. During the construction procedure, we took the original brick wall as formwork and casted a new layer of concrete with the thickness of 12 centimeters in place on the interior. The new rebar steels were inserted into circular holes with a matrix of 600 millimeters that made in the original brick walls. The new and the old wall structure thus became an integral whole, a “double wall” structure. As concrete pouring became harder along the ceiling, the drilled circular holes with inserted rebar steels had opening created to aid the process. Therefore, the new walls were poured and reinforced, and an interlocking system was created in the wall.

 

The third floor finalized its form in the shape of an arch after taking into accounts of various spatial and formal conditions. The whole arch structure rested on the load-bearing walls below, and formulated a continuous coverage. The arch itself was a rigid waterproof structure due to the fact that water does not stay on curved surfaces, and anti-permeability additives were applied to the building materials. Thus downspouts and other water resisting features were not needed for this part of the project.

Cronologia:

2016

Inizio lavori

2017

Fine lavori

sheets:

Site:

www.vectorarchitects.com